Burnsville Streat, MN 55337, United States

Location: London / Birmingham / Manchester / liverpool/ Scotland
Sector: Residential and Commercial
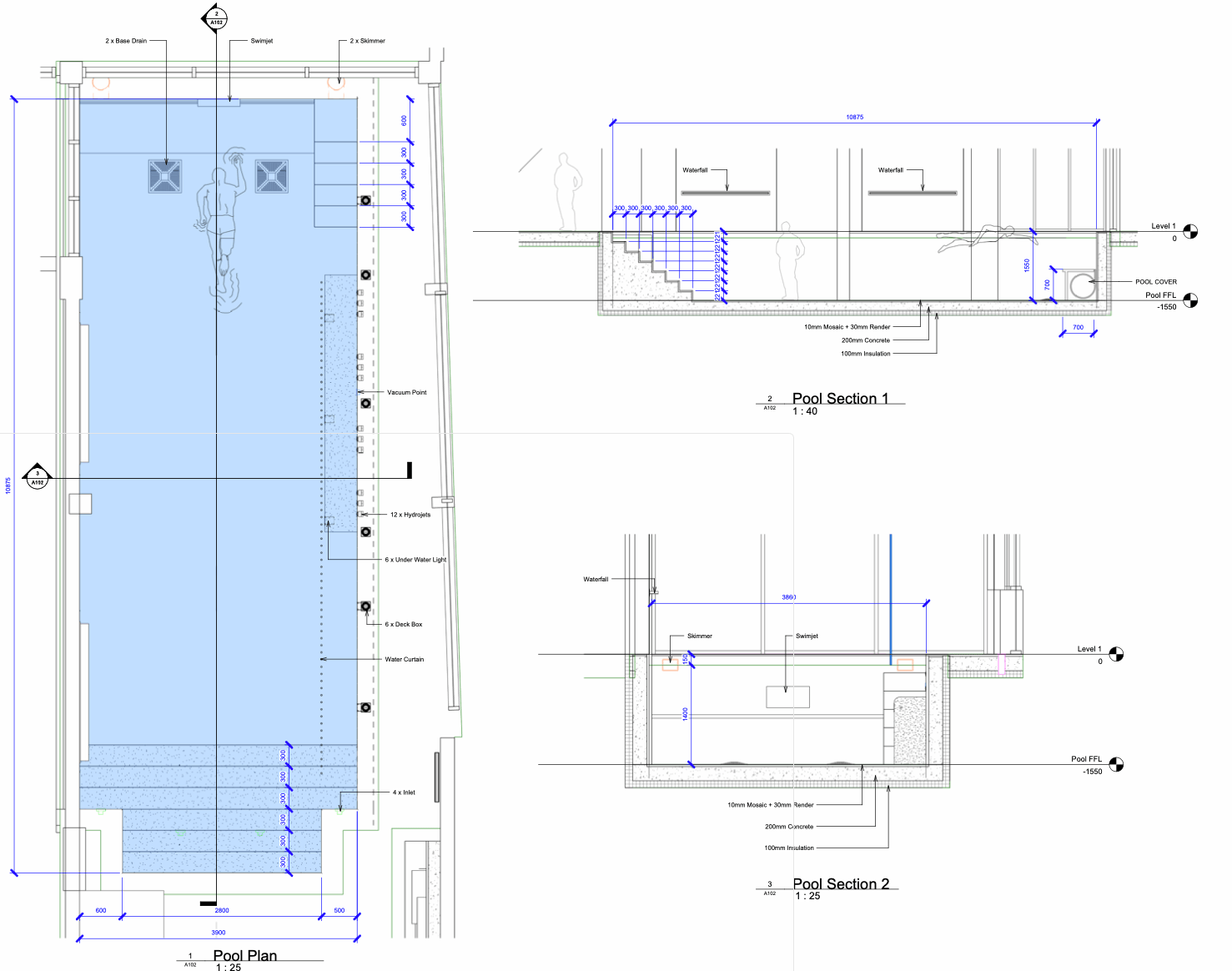
Services: Architect Design / Structural Design / Pool Hydraulics / HVAC / Isometric
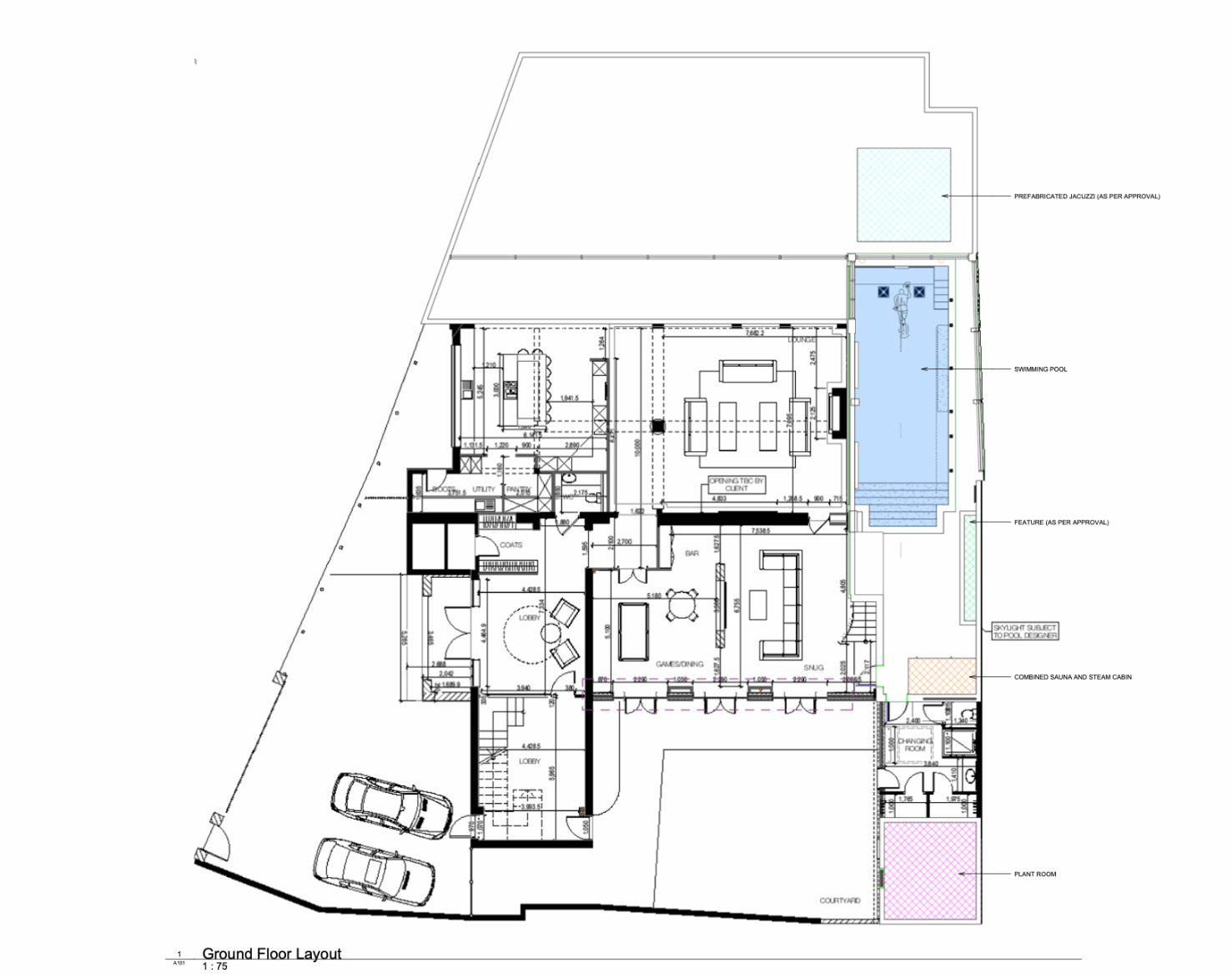
We are a leading swimming pool design company, blending architectural creativity with structural precision to deliver stunning, functional, and timeless designs. Trusted by both residential and commercial clients, we set the benchmark for quality, innovation, and excellence in every project. Our passion is turning visions into extraordinary pool designs that are not only cosmetically appealing but also practical and achievable.














Visit our service page for more details including swimming pool design, hydraulics and build.